Urban Design

Requirements

Design an addition of 120 housing units for a existing residential neighbourhood while advocating for the given topic of agriculture.

Location

Bocksfeldstraße 21, 13595 Berlin, Germany

Vision

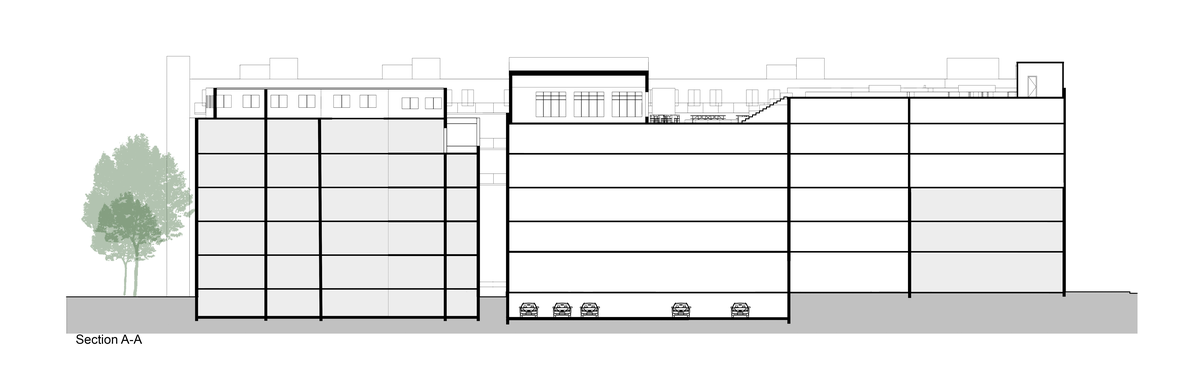
To promote urban agriculture and improve the conditions of the neighbourhood, the newly designed housing block was divided into two distinct parts. One part is open to the public, while the other remains closed to ensure safety and privacy due to the kindergarten located within one of the courtyards.

Additional levels were added on top of several existing buildings to increase residential capacity. One rooftop housing model introduces a reduced-rent system, where residents receive lower rent in exchange for actively maintaining and using plant-growing pods on the roof. Another rooftop is dedicated to a flower-growing micro business, supporting local entrepreneurship.

The new housing block features a ground floor designed specifically for workshops and a small shop, allowing residents to prepare, process, and sell their produce. At rooftop level, a small restaurant was introduced, which grows part of its own ingredients on-site, further reinforcing the concept of self-sustaining urban agriculture.

Software used: AutoCad, Revit, Rhino, Photoshop

Team: Xenia Klimova, Eric Dragomir, Signe Basse, Rikardo Prelaj

Instructors: Lukas Staudinger