Equestrian Tourist Complex

Requirements

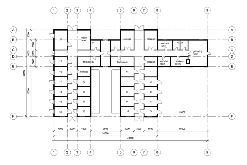
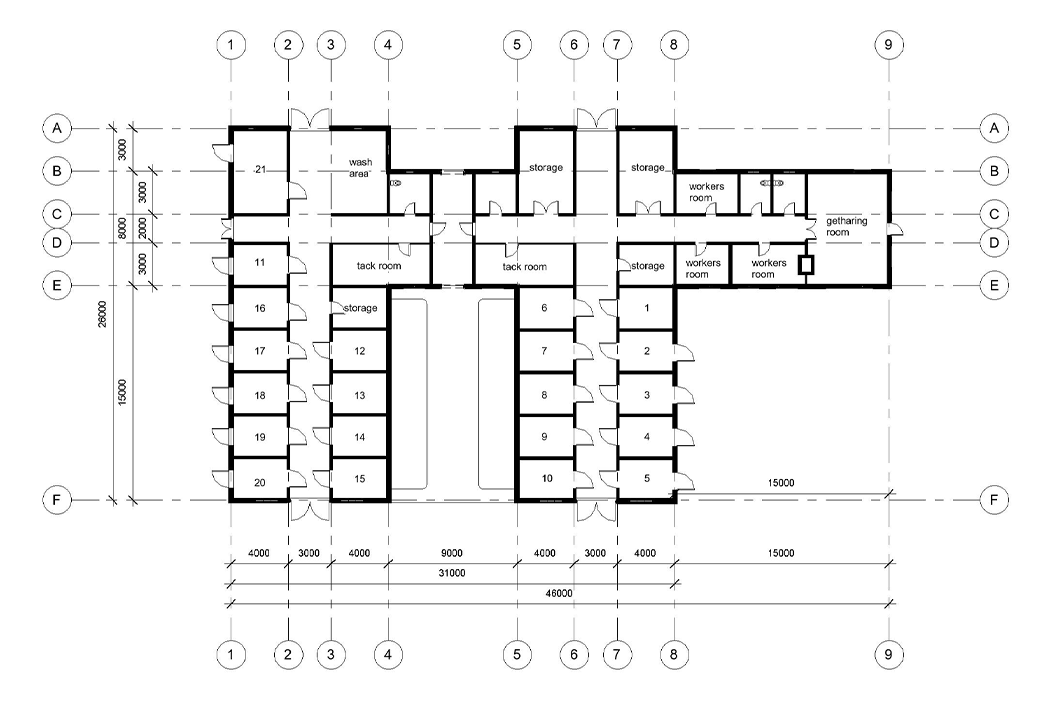
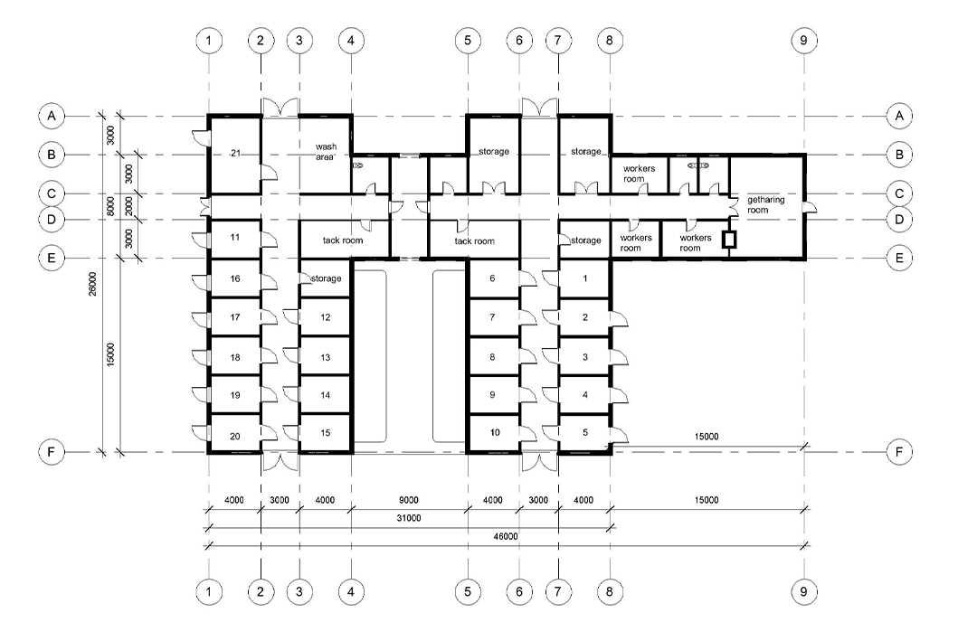
Create an "Equastrian Tourist Complex" consisting of a hotel and stables.

Location

Likani village, Borjomi National Park, Georgia.

Vision

The site was selected for its exceptional natural landscape and extensive network of horse-riding routes. Due to the complex terrain, however, hotels in the area are typically located far from the actual riding and hiking paths. This project addresses that challenge by positioning the complex closer to the “action” zones, turning a logistical constraint into a compelling design problem.

The architectural concept is strongly inspired by Greene & Greene architecture, a style that naturally integrates with wild landscapes and emphasizes craftsmanship, materiality, and detail. This approach allowed the complex to blend into its surroundings rather than compete with them.

The hotel and the stables are designed in the same architectural style but at different levels of sophistication. The stables are intentionally simpler in execution, yet they repeat key motifs used in the hotel, ensuring that both buildings are perceived as a unified complex. The primary unifying elements are the window design and overhang roofs — clear references to Greene & Greene architecture.

The hotel is located on a sloped site and features two entrance levels: a main entrance on the lower floor and a secondary entrance on the upper floor from the rear. This configuration allows for efficient circulation and a strong connection to the terrain. The site planning also made it possible to incorporate a well-proportioned hippodrome adjacent to the stables, completing the functional requirements of the equestrian complex.

Software used: AutoCad, Revit, Blender, Photoshop, InkScape

Instructors: Merab Gudjabidze