castle-3d-01

Residential House "Glen-kolodezi"

Requirements

Design a house for one family. Mandatory requirements: 2 floors, basement, 2 bathrooms, balcony or terrace, compliance with SNIP.

Location

Russia, Moscow region, Teleshovo village

Vision

The work was created based on Scottish castles of the 16th-18th centuries.

Software used: AutoCad, Revit, Blender, Photoshop

Construction Note

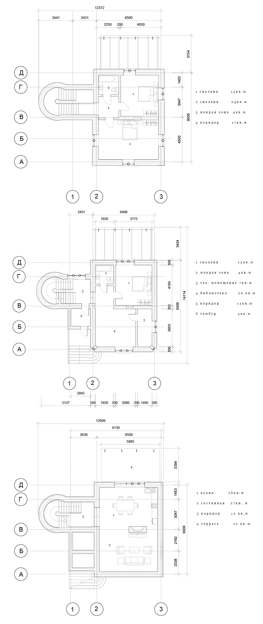
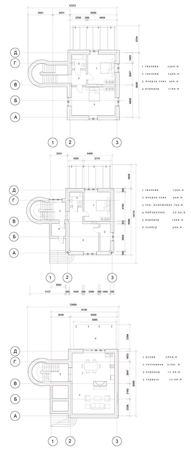
Construction Plans

castle-facades-01
castle-facades-02
castle-levels
castle-levels